Deposito in vendita

Bellizzi, Via Delle Industria
€ 95.000
1 locale 1 locale
100 Mq 100 Mq
1 bagno 1 bagno

Deposito in vendita

Bellizzi, Via Delle Industria

Descrizione annuncio

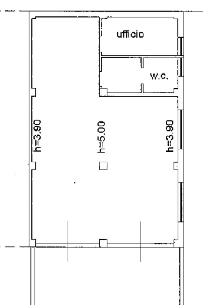
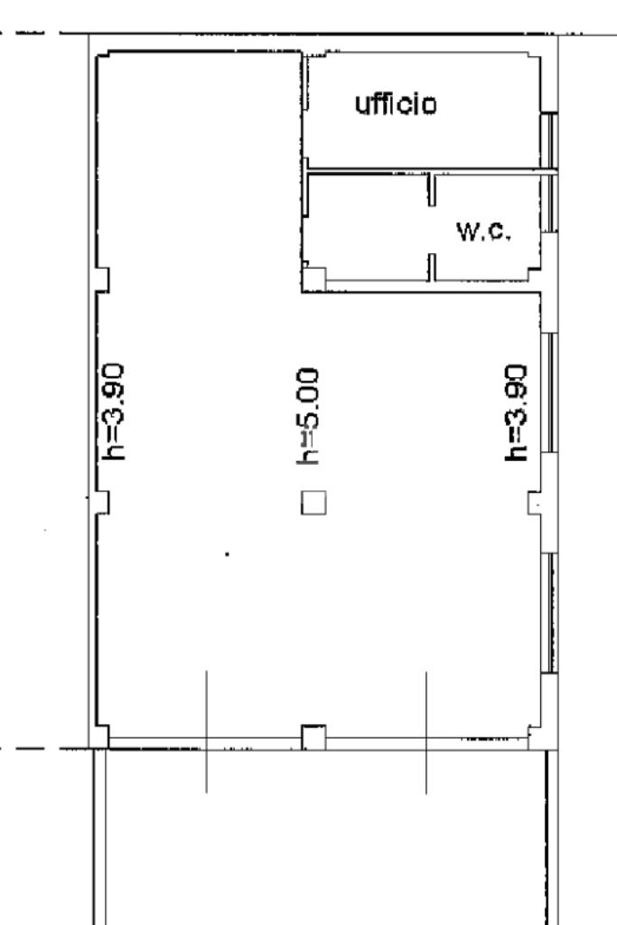
Zona industriale.

Al piano terra con ingresso privato e corte privata.

Offre un ampio locale unico, ideale per diverse esigenze di stoccaggio o attività.

È dotato di un bagno funzionale.

La posizione al piano terra facilita l'accesso e la movimentazione delle merci. Questa soluzione rappresenta un'opportunità interessante per chi cerca un deposito versatile e ben posizionato a Bellizzi.

Possibilità di visionarlo tutti i giorni previo appuntamento telefonico.

Offriamo Valutazioni e Consulenze Mutuo gratuite e senza alcun impegno.

Seguici sui nostri canali social Facebook e Instagram e sulla nostra pagina Gruppo Tecnocasa (Tecnocasa Bellizzi).

Mostra tutto

Nelle vicinanze

Trasporto pubblico Trasporto pubblico
Trasporto pubblico
2,7 Km
Montecorvino
Montecorvino
2,4 Km
Ricariche auto elettriche Ricariche auto elettriche
Villa le Querce
2,0 Km
Scuole Scuole
Scuole
1,8 Km
Farmacia Farmacia
Farmacia
2,0 Km
Ospedali Ospedali
Santa Maria della Speranza
2,4 Km
Ospedali
2,4 Km
Supermercati Supermercati
Supermercati
2,8 Km
Ristoranti Ristoranti
Ristoranti
830 m
Mostra tutto

Caratteristiche

Rif.:
61165994
Piano:
Terra
Condizionamento:
Autonomo
Ascensore:
No
Riscaldamento:
Assente
Giardino:
Privato
Mostra tutto
Prezzo Prezzo
€ 95.000
Rata mutuo Rata mutuo
€ 451 / mese
Spese annue Spese annue
€ 0
Proponi il tuo prezzoProponi il tuo prezzo

Altre caratteristiche

Classe Energetica

Questo immobile è esente da classe energetica
Anno di costruzione:
1966
Riscaldamento:
Assente

Ti interessa visionare l'immobile?

Fissa un appuntamento  Fissa un appuntamento

Richiedi informazioni

Clicca su Leggi per aprire l'informativa
* Questi campi sono obbligatori

Calcola il tuo mutuo

Semplice e senza impegno
Anticipo

( % )
Mutuo

( % )

pochi semplici passi

inserisci i tuoi dati
Questionario completato
Grazie per aver richiesto un appuntamento senza impegno con un nostro Consulente del Credito e Assicurativo.

Hai inserito correttamente tutti i dati necessari e a breve riceverai una e-mail con un link da convalidare per inviare i tuoi dati.
Affiliato
Studio Bellizzi Srl
Via Roma, 153 84092 Bellizzi (SA)

Il nostro staff


  • Matteo De Filippis
    Affiliato

  • Eva Salerno
    Collaboratrice

  • Chiara Coccorullo
    Coordinatrice
Via Roma, 153 84092 Bellizzi (SA)
Zona: Bellizzi - Belvedere - Bivio Pratole
Mostra su mappa
Orari: dal lunedì al venerdì ore 09:00 - 13:00 /ore 15:30 - 20:00 - sabato dalle 09:00 alle 13:00
Affiliato
Studio Bellizzi Srl
Via Roma, 153 84092 Bellizzi (SA)

2026 Tecnocasa Franchising S.p.A. - P. IVA 08365160152 - Via Monte Bianco 60/A 20089 Rozzano (MI). Ogni agenzia ha un proprio titolare ed è autonoma. Privacy policy | Policy utilizzo | Cookie policy