Trilocale in vendita

Bellizzi, Via Morelli
€ 119.000
3 locali 3 locali
70 Mq 70 Mq
1 bagno 1 bagno

Trilocale in vendita

Bellizzi, Via Morelli

Descrizione annuncio

Località Bivio Pratole.

Un'opportunità interessante per chi cerca una soluzione abitativa pratica e ben collegata.

Piccola palazzina e mini condominio con spese contenute.

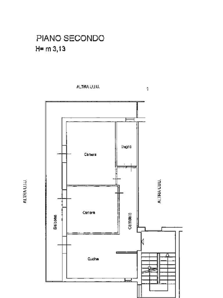
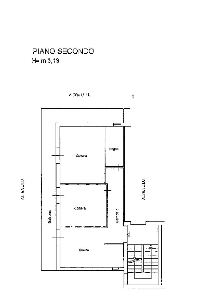
Secondo ed ultimo piano.

L'immobile, offre una disposizione funzionale con tre locali ben distribuiti.

Ampia balconata con esposizione a sud ovest.

La zona giorno è luminosa e accogliente con una cucina abitabile che permette di gestire al meglio gli spazi dedicati.

Le due camere da letto, molto spaziose, offrono comfort e tranquillità, perfette per il riposo notturno.

La posizione centrale dell'appartamento consente di raggiungere facilmente i principali servizi e le attività commerciali del comune.

Completano l'immobile due climatizzatori e un serbatoio per l'acqua potabile. Infissi con .

Sottotetto di proprietà di mq 15 circa sempre utile per ulteriori spazi.

ABITABILE DA SUBITO.

Possibilità di visionarlo ogni giorno previo appuntamento telefonico.

Offriamo Valutazioni e Consulenze Mutuo gratuite e senza alcun impegno.

Seguici sui nostri canali social Facebook e Instagram e sulla nostra pagina Gruppo Tecnocasa (Tecnocasa Bellizzi).

Mostra tutto

Nelle vicinanze

Trasporto pubblico Trasporto pubblico
Aeroporto
Aeroporto
720 m
Montecorvino
Montecorvino
1,8 Km
Scuole Scuole
Scuole
2,8 Km
Farmacia Farmacia
Farmacia
1,4 Km
Supermercati Supermercati
Decathlon
1,6 Km
Negozi Negozi
OVS
2,3 Km
ZARA
2,3 Km
CombìpelUOMO
2,3 Km
H&M
2,3 Km
CANDIDA
2,3 Km
Ristoranti Ristoranti
Ristoranti
1,9 Km
Punto Ristoro Maximall
2,2 Km
Mostra tutto

Caratteristiche

Rif.:
61116690
Piano:
2 di 2 (Piano medio)
Balconi:
1
Camere da letto:
2
Arredamento:
Assente
Condizionamento:
Autonomo
Mostra tutto
Prezzo Prezzo
€ 119.000
Rata mutuo Rata mutuo
€ 528 / mese
Spese annue Spese annue
€ 120
Proponi il tuo prezzoProponi il tuo prezzo
Immobile valutato con TecnoValore

Classe Energetica

C
C
C
C
C
C
C
C
C
EP globale non rinnovabile:
160.96 kW h/m² anno
EP globale rinnovabile:
160.96 kW h/m² anno
EP invernale del fabbricato:
EP estiva del fabbricato:
Anno di costruzione:
1970
Riscaldamento:
Autonomo
Tipo impianto:
A radiatori
Tipo alimentazione:
Metano

Ti interessa visionare l'immobile?

Fissa un appuntamento  Fissa un appuntamento

Richiedi informazioni

* Questi campi sono obbligatori

Calcola il tuo mutuo

Semplice e senza impegno
Anticipo

( % )
Mutuo

( % )

pochi semplici passi

inserisci i tuoi dati
Questionario completato
Grazie per aver richiesto un appuntamento senza impegno con un nostro Consulente del Credito e Assicurativo.

Hai inserito correttamente tutti i dati necessari e a breve riceverai una e-mail con un link da convalidare per inviare i tuoi dati.
Affiliato
Studio Bellizzi Srl
Via Roma, 153 84092 Bellizzi (SA)

Il nostro staff


  • Matteo De Filippis
    Affiliato

  • Eva Salerno
    Collaboratrice

  • Chiara Coccorullo
    Coordinatrice
Via Roma, 153 84092 Bellizzi (SA)
Zona: Bellizzi - Belvedere - Bivio Pratole
Mostra su mappa
Orari: dal lunedì al venerdì ore 09:00 - 13:00 /ore 15:30 - 20:00 - sabato dalle 09:00 alle 13:00
Affiliato
Studio Bellizzi Srl
Via Roma, 153 84092 Bellizzi (SA)

2025 Tecnocasa Franchising S.p.A. - P. IVA 08365160152 - Via Monte Bianco 60/A 20089 Rozzano (MI). Ogni agenzia ha un proprio titolare ed è autonoma. Privacy policy | Policy utilizzo | Cookie policy