Casa semindipendente in vendita

Battipaglia, Via Spineta
€ 199.000
4 locali 4 locali
157 Mq 157 Mq
2 bagni 2 bagni

Casa semindipendente in vendita

Battipaglia, Via Spineta

Descrizione annuncio

In zona tranquilla e ben collegata, non lontano dal centro della città dai servizi e dalla stazione.

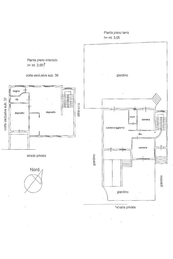
L'immobile suddiviso su due livelli offre spazi ben distribuiti e funzionali.

L' ingresso é dal primo piano con scala esterna dove troverete un doppio salone con camino, due camere da letto accoglienti ideali per adattarsi alle vostre esigenze e un bagno.

Due balconi offrono spazi esterni privati garantendo momenti di relax.

Al piano seminterrato invece si apre un ampia taverna con un ulteriore camino, angolo cottura, lavanderia e bagno.

Un piccolo deposito adiacente é adibito come ufficio ma puó avere vari utizzi usarlo anche come box in quanto ha il suo ingresso privato.

I due piani sono collegati da scala interna.

In discrete condizioni e abitabile da subito in quanto viene venduto completo di arredo, cucina, tavolo con sedie, divani, camere da letto ed elettrodomestici, lampadari di valore e molto pregiati.

I condizionatori assicurano un ambiente confortevole in ogni stagione, termoautonomo e con pavimenti in marmo.

Valore aggiunto alla proprietà é il giardino privato in parte pavimentato fornendo un'area verde dove poter trascorrere piacevoli giornate all'aperto.

Possibilità di visionarlo ogni giorno previo appuntamento telefonico.

Offriamo Valutazioni e Consulenze Mutuo gratuite e senza alcun impegno.

Seguici sui nostri canali social Facebook e Instagram e sulla nostra pagina Gruppo Tecnocasa (Tecnocasa Bellizzi).

Mostra tutto

Nelle vicinanze

Trasporto pubblico Trasporto pubblico
Battipaglia
Battipaglia
1,4 Km
Trasporto pubblico
910 m
Fermata Bus SITA - EAC
Fermata Bus SITA - EAC
1,5 Km
Montecorvino
Montecorvino
1,9 Km
Scuole Scuole
Scuole
750 m
Sandro Penna
1,1 Km
Scuole medie Francesco Fiorentino
1,9 Km
Scuole
2,0 Km
Scuola Materna Poliziano
2,1 Km
Farmacia Farmacia
Farmacia
1,3 Km
Ospedali Ospedali
Ospedali
940 m
Santa Maria della Speranza
980 m
Clinica Salus
2,2 Km
Supermercati Supermercati
Supermercati
1,5 Km
Negozi Negozi
Negozi
2,0 Km
Bar Bar
Bar
1,3 Km
Bar Salpietro
1,3 Km
Ristoranti Ristoranti
Ristoranti
1,3 Km
Mostra tutto

Caratteristiche

Rif.:
61155985
Piano:
1 di 2 (Piano basso)
Balconi:
2
Camere da letto:
2
Arredamento:
Completo
Condizionamento:
Autonomo
Mostra tutto
Prezzo Prezzo
€ 199.000
Rata mutuo Rata mutuo
€ 945 / mese
Spese annue Spese annue
€ 0
Proponi il tuo prezzoProponi il tuo prezzo

Classe Energetica

D
D
D
D
D
D
D
D
D
EP globale non rinnovabile:
67.35 kW h/m² anno
EP globale rinnovabile:
67.35 kW h/m² anno
EP invernale del fabbricato:
EP estiva del fabbricato:
Anno di costruzione:
1993
Riscaldamento:
Autonomo
Tipo impianto:
A radiatori
Tipo alimentazione:
Metano

Ti interessa visionare l'immobile?

Fissa un appuntamento  Fissa un appuntamento

Richiedi informazioni

Clicca su Leggi per aprire l'informativa
* Questi campi sono obbligatori

Calcola il tuo mutuo

Semplice e senza impegno
Anticipo

( % )
Mutuo

( % )

pochi semplici passi

inserisci i tuoi dati
Questionario completato
Grazie per aver richiesto un appuntamento senza impegno con un nostro Consulente del Credito e Assicurativo.

Hai inserito correttamente tutti i dati necessari e a breve riceverai una e-mail con un link da convalidare per inviare i tuoi dati.
Affiliato
Studio Bellizzi Srl
Via Roma, 153 84092 Bellizzi (SA)

Il nostro staff


  • Matteo De Filippis
    Affiliato

  • Eva Salerno
    Collaboratrice

  • Chiara Coccorullo
    Coordinatrice
Via Roma, 153 84092 Bellizzi (SA)
Zona: Bellizzi - Belvedere - Bivio Pratole
Mostra su mappa
Orari: dal lunedì al venerdì ore 09:00 - 13:00 /ore 15:30 - 20:00 - sabato dalle 09:00 alle 13:00
Affiliato
Studio Bellizzi Srl
Via Roma, 153 84092 Bellizzi (SA)

2026 Tecnocasa Franchising S.p.A. - P. IVA 08365160152 - Via Monte Bianco 60/A 20089 Rozzano (MI). Ogni agenzia ha un proprio titolare ed è autonoma. Privacy policy | Policy utilizzo | Cookie policy